ノルデンハイム東三国Ⅱ
物件番号 | No.35
建物概要
| エリア | 大阪市淀川区東三国6-9-3 |
|---|---|
| 築年数 | 1998年3月 |
| 構造 | 鉄筋コンクリート造 |
| 総階層 | 8階層 |
| 総戸数 | 全50室 |
| 交通 | 地下鉄御堂筋線 東三国駅 徒歩5分 |
| 駐車場 | 有(有料) |
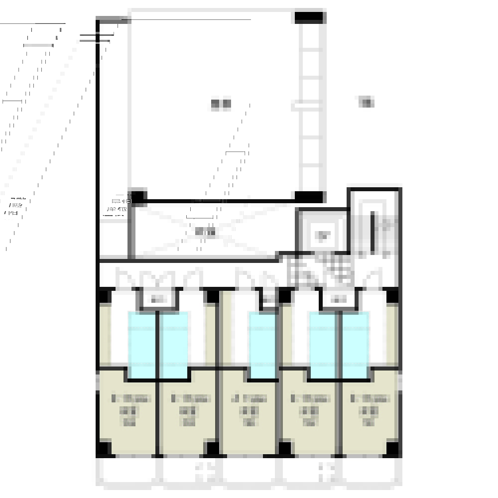
平面図
タイプのご紹介
共用設備
- 玄関オートロック方式
- エレベーター(三菱)高速9人乗り 1基
- 防犯カメラ 各所設置
- 1Fエントランスホールにエアコン設置
- 管理人常駐
室内設備
- インターホン
- 洗濯パン
- 温水洗浄便座
- ガス給湯器
- キッチン(IHクッキングヒーター)
- TEL引込線
- 冷暖房エアコン
- 全室照明器具付
- テレビ配線CATV(J:COM 地上波は無料)
- BSアンテナ
- インターネット回線(別途加入必要)
※ フレッツ光ネクスト auひかり eo光 J:COM NURO光
