第1マンション北(グランドハイツ北)
物件番号 | No.1
建物概要
| エリア | 大阪府大阪市東淀川区豊新4-2-5 |
|---|---|
| 築年数 | 1972年7月 |
| 構造 | 鉄筋コンクリート造 |
| 総階層 | 6階層 |
| 総戸数 | 全46室 |
| 交通 | 阪急京都線 上新庄駅 徒歩10分 |
| 駐車場 | 有(有料) |
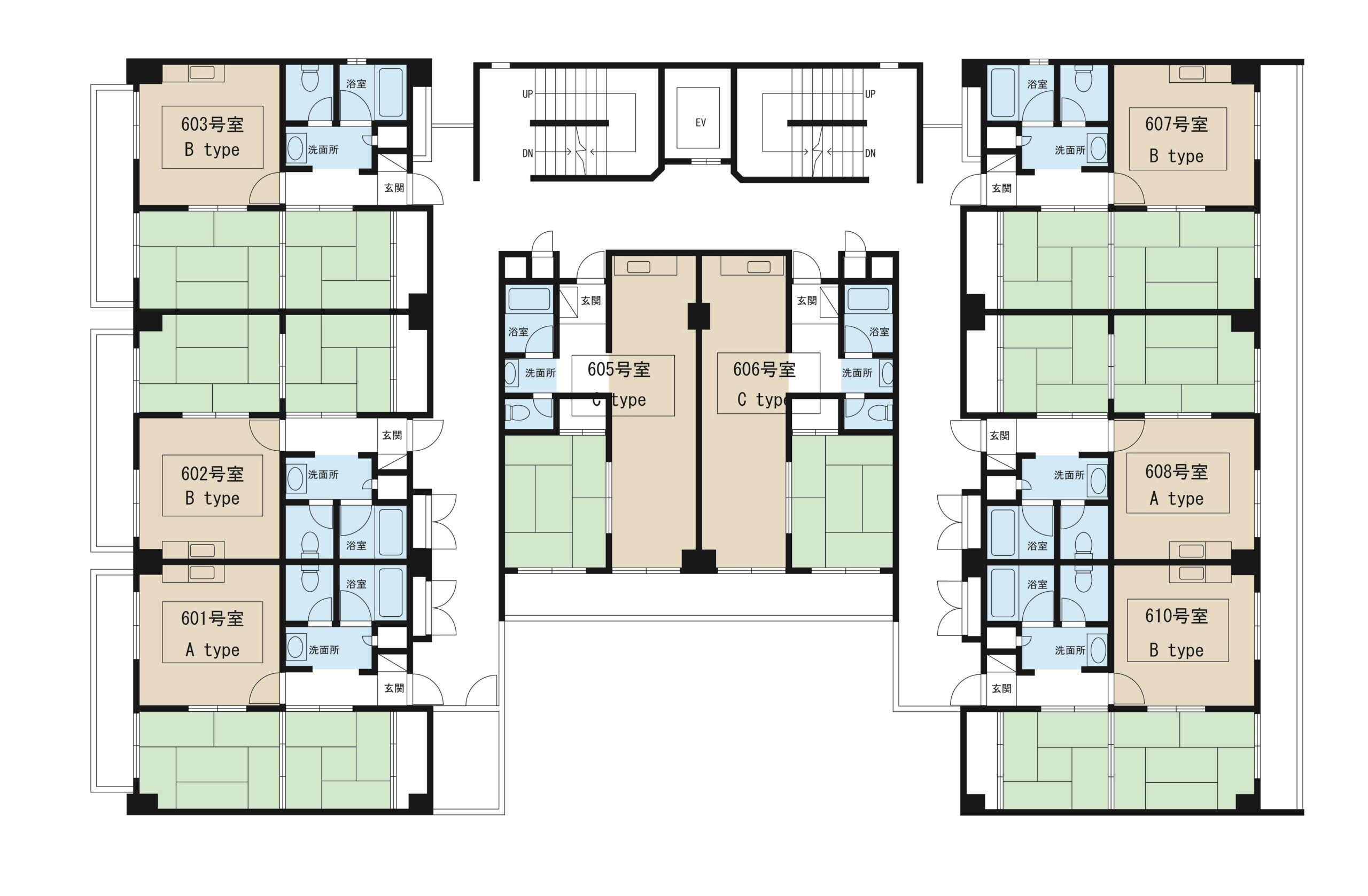
平面図
タイプのご紹介
共用設備
- エレベーター
- 駐車場(有料)
- 単車置場(有料)
- 自転車置場(有料)
室内設備
- ガス湯沸かし器
- 洗面化粧台(電気温水器)
- 台所(ガス)
- 浴室(ガス)
- エアコン
- 全室照明器具付
- テレビ配線 CATV(地上波は無料)
- インターネット回線(別途加入必要)
※フレッツ光ネクスト auひかり J:COM NURO光
