ノルデンタワー南森町アドバンス
物件番号 | No.59
建物概要
| エリア | 大阪市北区南森町1-3-18 |
|---|---|
| 築年数 | 2025年2月 |
| 構造 | 鉄筋コンクリート造 |
| 総階層 | 19階建階層 |
| 総戸数 | 全71室 |
| 交通 | 地下鉄谷町線 南森町駅 徒歩1分 JR東西線 大阪天満宮駅 徒歩3分 |
| 駐車場 | 有(有料) |
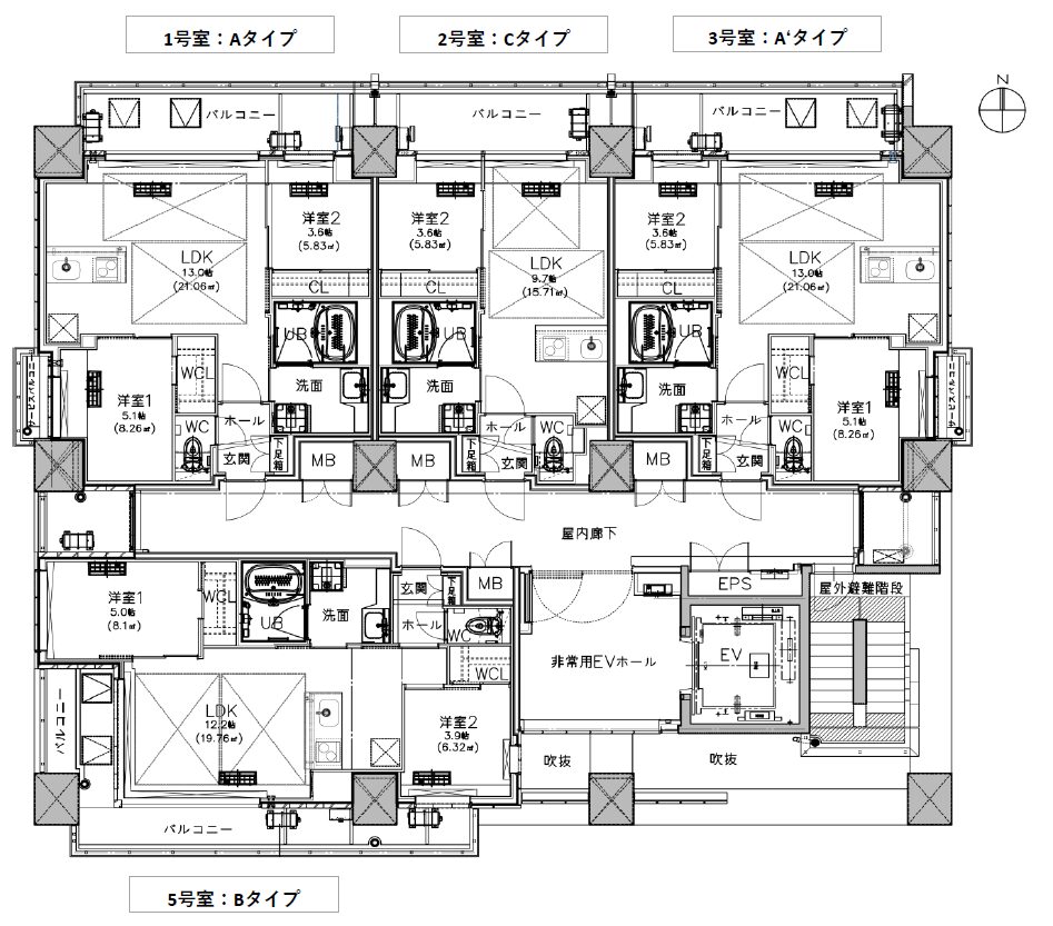
平面図
タイプのご紹介
共用設備
◯エントランス
オートロックシステム(非接触キー対応)
◯エレベーター1基(17人乗り)
※エレベーター呼出し 1階のみ非接触キー対応
※各階エレベーターホールにエアコン設置
◯宅配ボックス 30個設置 カードキー対応
◯集合郵便受け
室内設備
◯玄関プッシュプル錠、電池式電動サムターンユニット
(カードキー、テンキー、リバーシブルディンプルキー)
◯カラーモニター付きインターホン(1Fエントランス来訪問者映像)
◯LIFIT(ライフィット)システム
(登録必要:無料※) (別途オプション有)
※警報メール通知、玄関戸締り確認メール通知、来客録画メール通知、
防犯警戒セット/リセット、宅配ボックス集荷通知、ID認識帰宅通知等
◯バリアフリー
◯各戸サッシにLow-e複層ガラスを採用
◯洗濯機用防水パン(640×640)、緊急止水栓付き洗濯機用水栓
※洗濯機高さ有効スペース 1235mm(蓋開け時)
◯ガス給湯暖房機(16号) (大阪ガス)
◯ガス乾燥機 幹太くん3kgタイプ (大阪ガス)
◯浴室1317ワイド浴槽 (TOTO)
ミストサウナ機能付き浴室暖房乾燥機 (大阪ガス)
追い炊き機能付き
◯温水洗浄便座(ウオシュレット:TOTO)
◯人造大理石カウンター一体型洗面化粧台
※シングルレバー式ハンドシャワー水栓
※ワイドLED照明・くもり止めコーティングミラー付き三面鏡・ホーローサイドパネル
◯ガス温水式床暖房 (大阪ガス)
◯冷暖房用エアコン付き (三菱重工)
◯リビング調光LEDダウンライト付き、洋室はLEDシーリング照明付き(リモコン付き)
◯システムキッチン (タカラスタンダード)
整流板付きレンジフード・ホーローキッチンパネル・静音シンク
2口ガラストップIHクッキングヒーター
◯テレビ
光ケーブルによるテレビ視聴サービス(民放無料・つなぐネット)
スカパー!プレミアムサービス光(申込必要:有料)
◯インターネット接続サービス(WI-FI) 無料 (つなぐネット)
◯電話 IP電話サービス (申込必要:有料・つなぐネット)
